Cafe Reno - Staircase
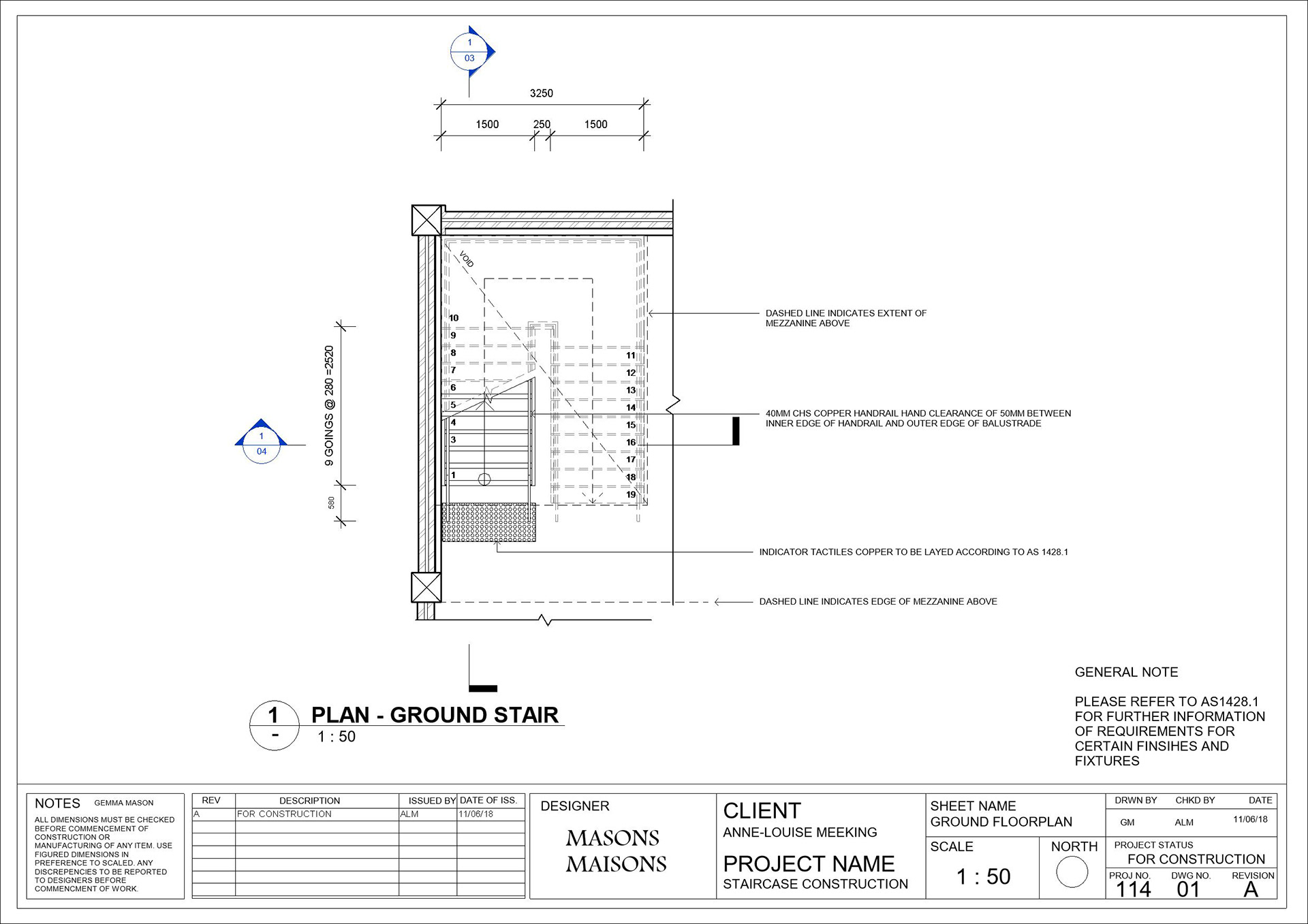
Part 3 of 3 | Third part of the construction documentation for the Cafe Reno, a commercial staircase linking the restaurant to the above mezzanine.
Part 3 of 3 | Third part of the construction documentation for the Cafe Reno, a commercial staircase linking the restaurant to the above mezzanine.